万达旅游城
设计说明
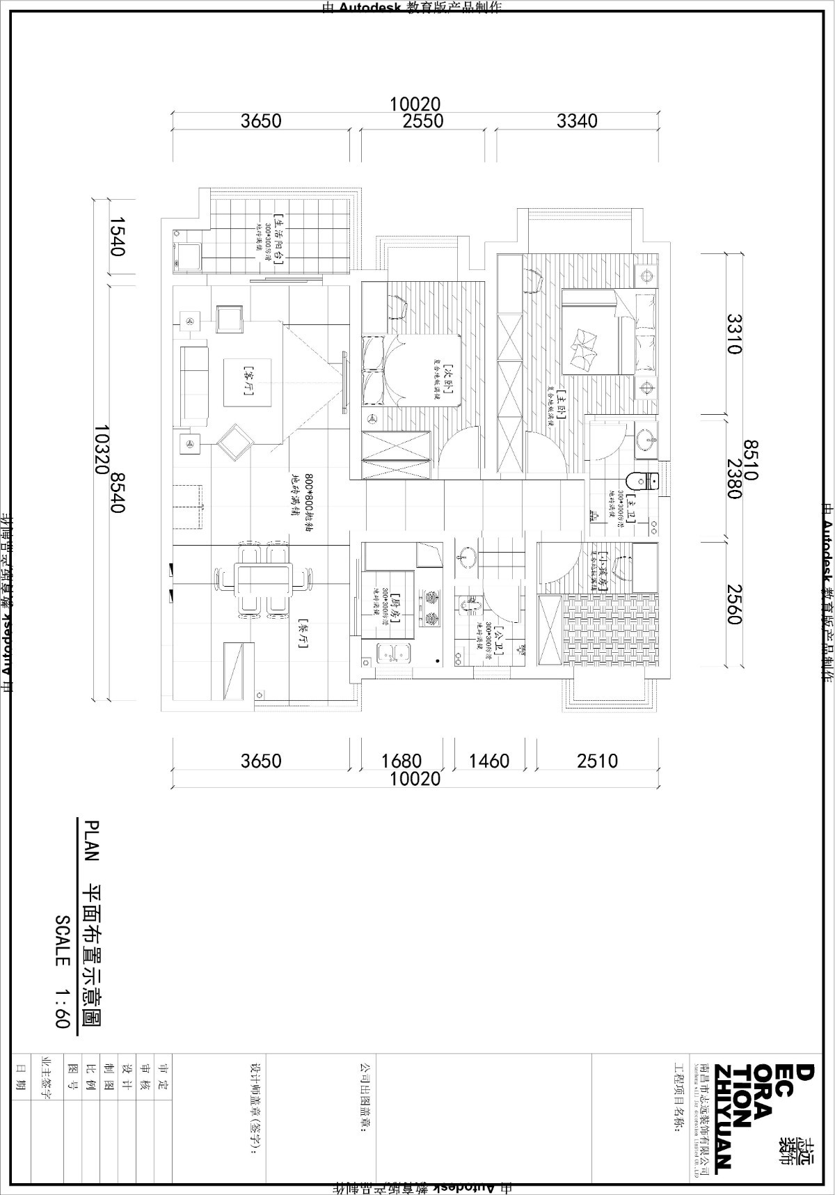
本案为旧房改造,色系以灰色+黄色为主调,全屋设计亮点为厨房的黄色谷仓门,既节约使用空间,又给整个房子增加了欢快、愉悦的氛围。
客厅整体以灰色与白色为主调,清爽、简洁又大气,符合年轻业主的装修需求。
沙发上放置了黄色抱枕,配色与后方挂画相互呼应,为整个空间提亮色彩。
电视墙没有做造型,放一些喜欢的软装增添氛围。简简单单,却充满了优雅与慵懒的气息。
阳台一侧设置书桌,旁边的储物架既可以简单放一些书籍,也可收纳一些杂物。黑色+灰色的搭配简约有格调,不落俗套且很有个性。
厨房采用了黄色谷仓门设计,既节约使用空间,又增添了愉悦、欢快的氛围。 黄色谷仓门与餐厅黄色可伸缩式壁灯遥相呼应,带来轻松、活泼的气息。
厨房选用白色为主调,搭配精致的小花砖,整个空间清爽活泼。 现在的洗菜盆区域是以前的生活阳台,归入厨房后整个空间有效利用率更大,橱柜操作台面更充裕。












