中航瑶湖郡
设计说明
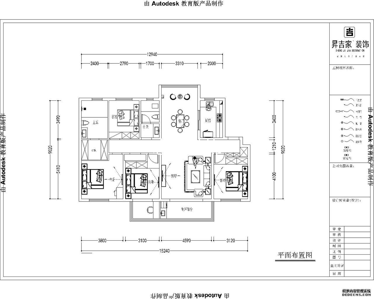
面 积:165平方
已开工工地:300多套
房 型: 四房两厅两卫
风 格:新中式风格
工程造价:30万
主材类别:地板,地砖,洁具,衣柜,橱柜,木门等
设计说明:
本案例设计根据客户需求来量身定制,客户是单元科级以上单元退休领导,喜欢中式风格的元素,但不喜欢中式风格那种沉重感,该方案结合了现代原始,打造了一个轻松愉悦的新中式风格。








面 积:165平方
已开工工地:300多套
房 型: 四房两厅两卫
风 格:新中式风格
工程造价:30万
主材类别:地板,地砖,洁具,衣柜,橱柜,木门等
设计说明:
本案例设计根据客户需求来量身定制,客户是单元科级以上单元退休领导,喜欢中式风格的元素,但不喜欢中式风格那种沉重感,该方案结合了现代原始,打造了一个轻松愉悦的新中式风格。








已有 2000+ 位业主提交设计需求