绿地悦城

案例户型 三居
装修风格 中式
房屋面积 100-150㎡
所属区域 红谷滩新区

设计说明

绿地悦城

已开工200

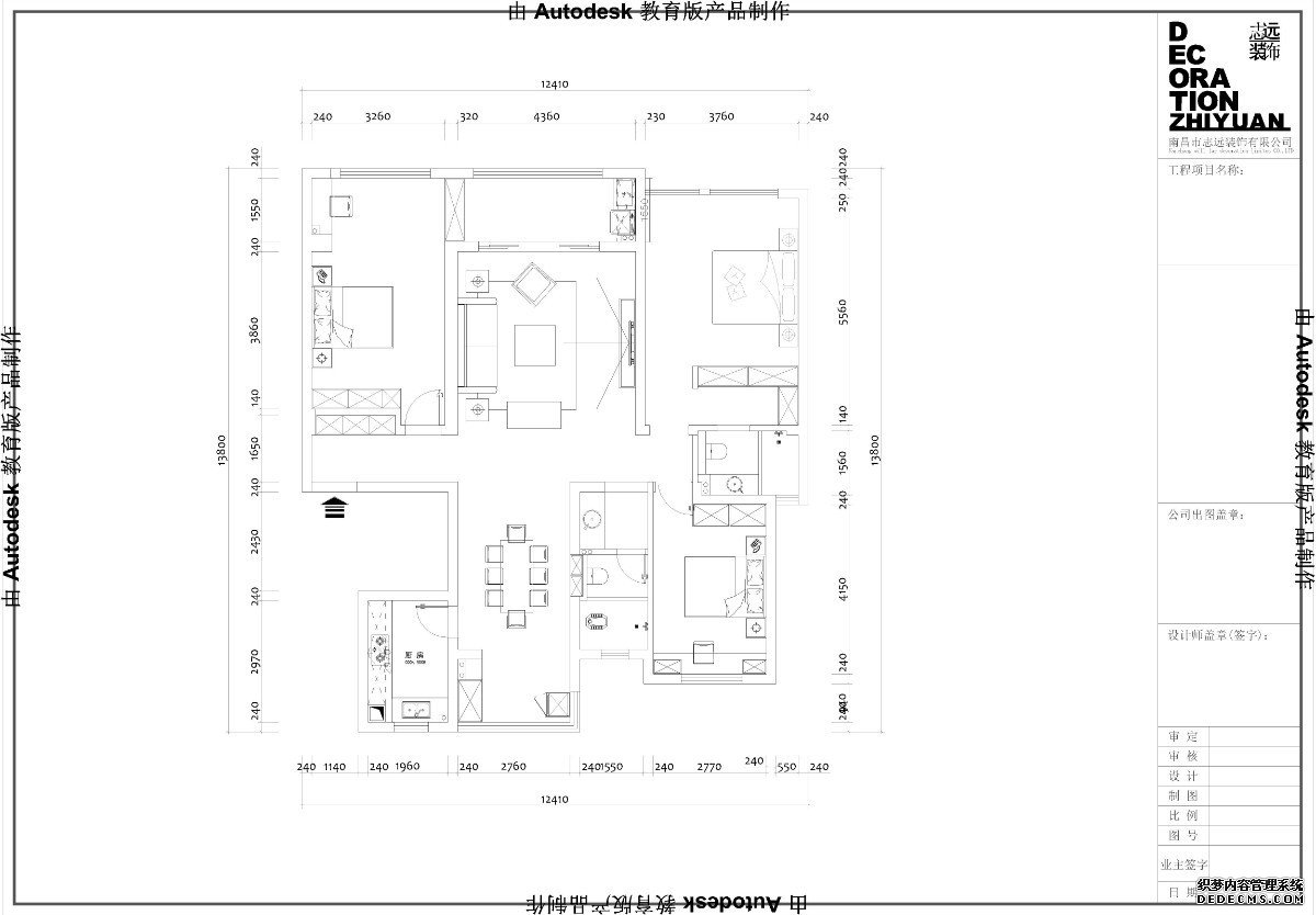
楼盘:绿地悦城

户型:三室两厅一厨两卫

面积:140m²

造价:全包35

主案设计师:文俊

本案是绿地悦城140户型, 本案为三房两厅一厨两卫的结构,户型的设计上通常采用贯穿设计,通过通风采光的设计中,让行走动线更为通畅,从风格上来说除了保持传统风格上的不变因素以外,我们更多的是创新,在创新中采用木制的搭配,能更加体现一种人文的精神在里面

 

 

 


暂无设计师