绿地悦城
设计说明
绿地悦城
已开工200户
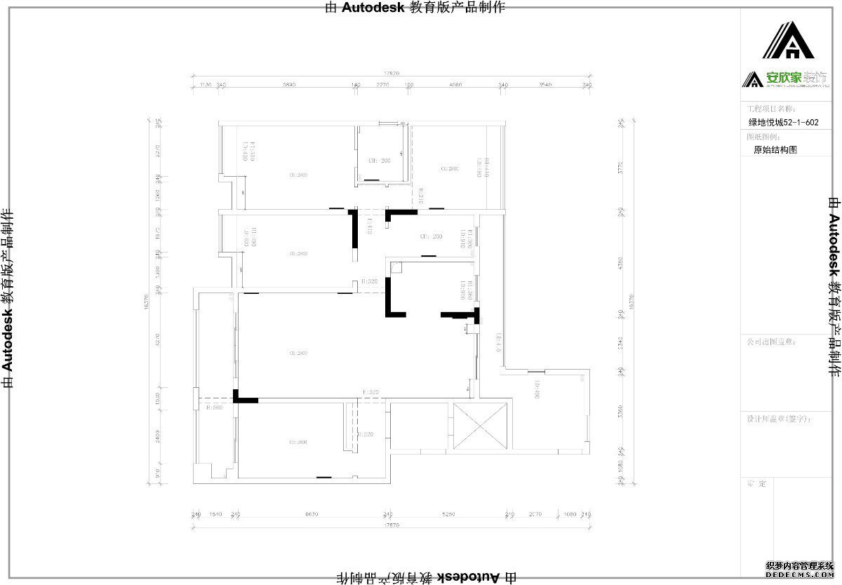
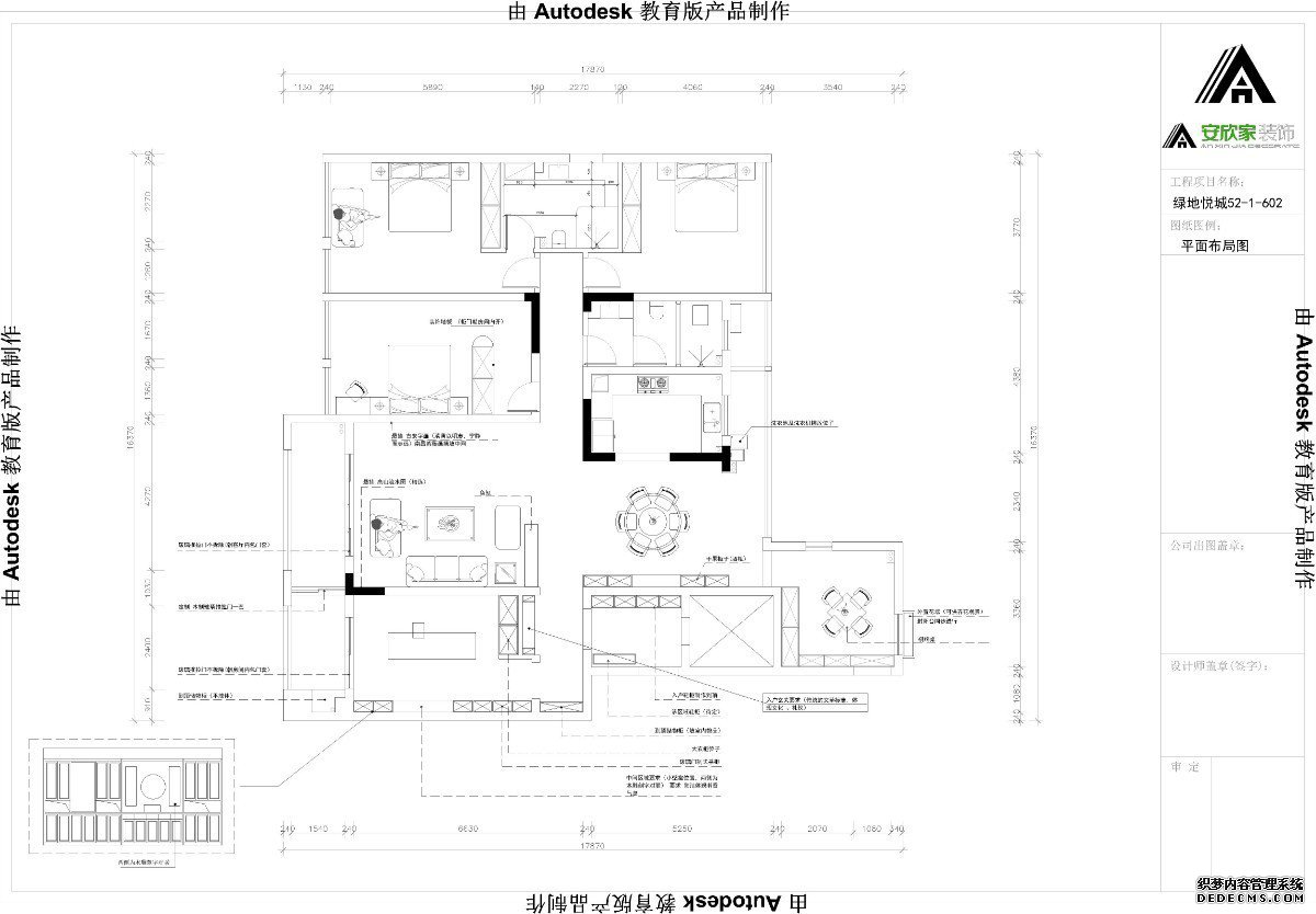
楼盘:绿地悦城
户型:五室两厅一厨两卫
面积:220m²
造价:全包60万
主案设计师:文俊
本案是绿地悦城220户型,中式风格设计上使用木结构最多,不论是结构上还是家具,多为木质结构。常见的中式住宅家具中,最具有代表性的家具就是红木家具,这类工艺品处处体现着浓郁的东方色彩。






绿地悦城
已开工200户
楼盘:绿地悦城
户型:五室两厅一厨两卫
面积:220m²
造价:全包60万
主案设计师:文俊
本案是绿地悦城220户型,中式风格设计上使用木结构最多,不论是结构上还是家具,多为木质结构。常见的中式住宅家具中,最具有代表性的家具就是红木家具,这类工艺品处处体现着浓郁的东方色彩。






已有 2000+ 位业主提交设计需求