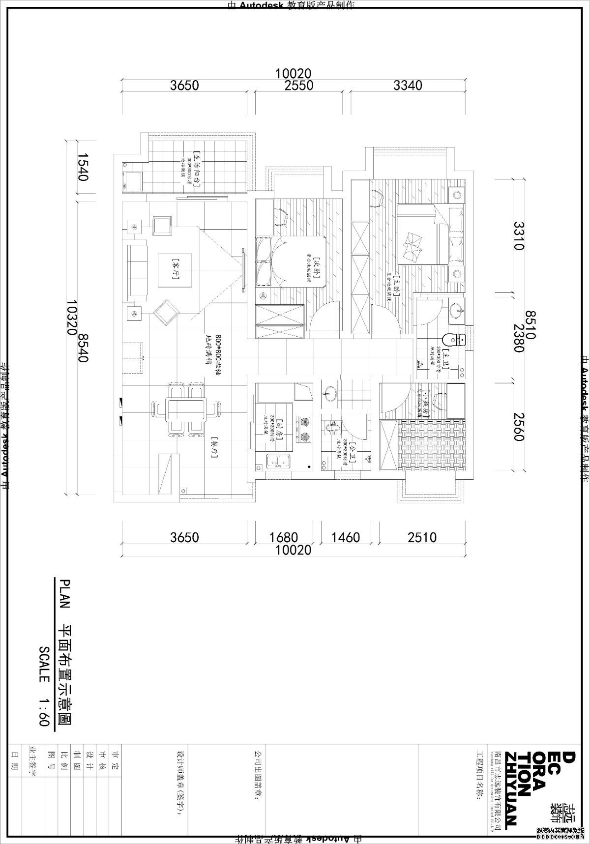
绿地国际博览城

案例户型 三居
装修风格 现代
房屋面积 100-150㎡
所属区域 红谷滩新区

设计说明

楼盘:绿地国际博览城

面积:115

风格:现代简约


暂无设计师